Bandol - Maison - 6 pièces

BANDOL

2 195 000 €  |  Ref : 14348

Infos

Type de bien
Maison
Prix
2 195 000 €   (7 517 €/m2)
Honoraires charge vendeur
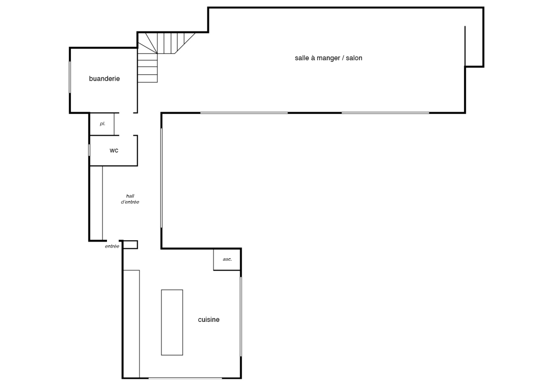
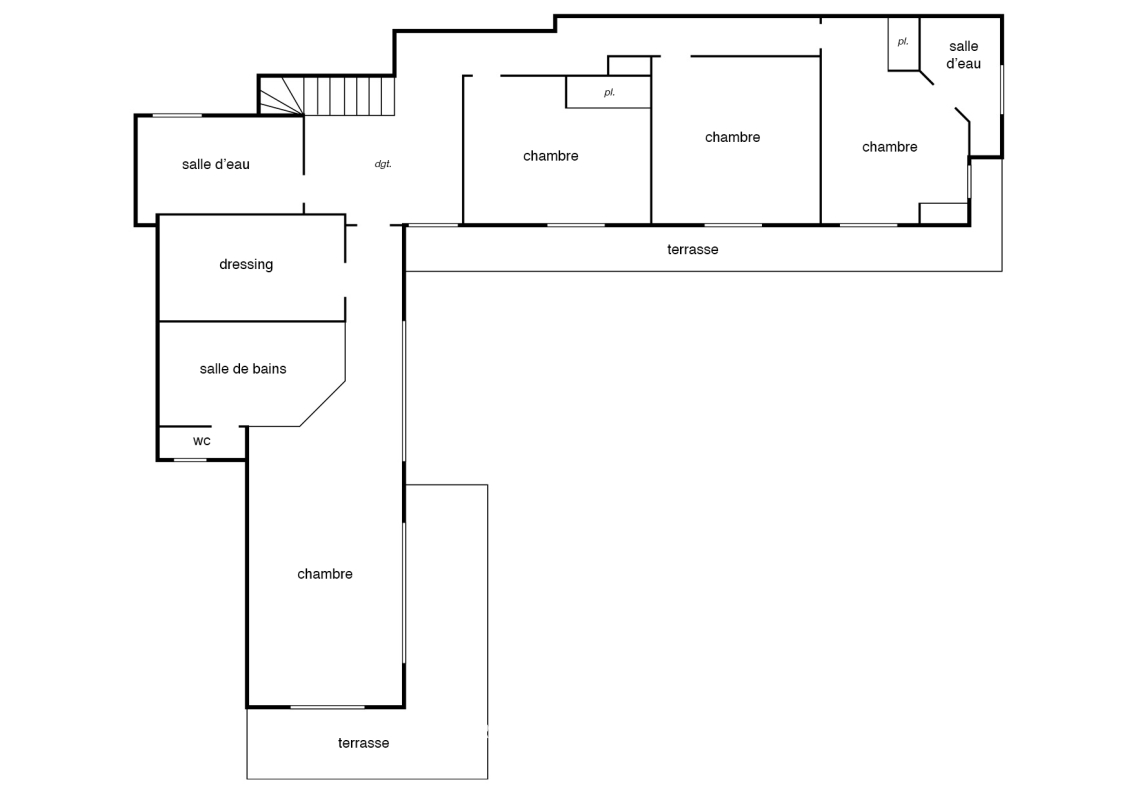
Surface habitable
292 m²
Nombre de pièces
6
Chambres
4
Salle(s) de bain
2
Salle(s) d'eau
1
Nombre de niveaux
3
Ascenseur
Oui
Terrain
1 200 m²
Piscine
Oui
Stationnement
Garage double
Surface garage
50 m²
Bien en copropriété
Non
Taxe foncière
5 089 €
Année de construction
2010
Soumis à l'affichage du DPE
Non
Dépenses annuelles d'énergie
(montant estimé pour un usage standard)
Entre 1 867 € et 2 525 €
Performance énergétique
Plans

Description

Au coeur d'un environnement privilégié, cette propriété d’exception s’épanouit sur une magnifique parcelle paysagée, offrant une vue dégagée et apaisante sur les vignobles environnants. Dès l’entrée, les volumes généreux et la luminosité naturelle séduisent instantanément. La pièce de vie, vaste et élégante, s’ouvre harmonieusement sur une superbe terrasse en teck, véritable prolongement de l’espace intérieur, invitant à la détente et aux moments de convivialité. La piscine à débordement, parfaitement intégrée dans son environnement, offre un panorama unique et renforce le caractère exclusif du lieu. La maison propose des prestations de qualité, alliant confort moderne et finitions soignées comme le béton ciré et le bois. L’espace nuit se compose de quatre chambres, dont une somptueuse suite parentale aux volumes exceptionnels, pensée comme un véritable cocon privé. Un bien rare, lumineux et raffiné, idéal pour les amateurs de nature et de sérénité, à la recherche d’un cadre de vie unique.

Les informations sur les risques auxquels ce bien est exposé sont disponibles sur le site Géorisques.