Marseille 7 - Appartement - 5 pièces

ENDOUME

1 350 000 €  |  Ref : 14331

Infos

Type de bien
Appartement
Prix
1 350 000 €   (9 783 €/m2)
Honoraires charge vendeur
Surface habitable
138 m²
Surface Carrez
132 m²
Nombre de pièces
5
Chambres
3
Salle(s) de bain
2
Salle(s) d'eau
1
Ascenseur
Non
Jardin
231 m²
Stationnement
Garage simple + Stationnement
Surface garage
24 m²
Bien en copropriété
Oui   (1 lot)
Nombre de lots d'habitation
3 lots
Procédures
Pas de procédure en cours
Charges de copropriété
600 € / an   (50 € / mois)
Taxe foncière
3 200 €
Année de construction
1940
Soumis à l'affichage du DPE
Oui
Performance énergétique
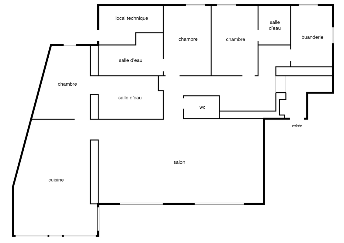
Plan

Description

Au cœur du quartier recherché de Malmousque, à quelques pas seulement de la mer, ce rez-de-jardin prend place au sein d’une élégante bâtisse au charme indéniable. Dès le seuil franchi, la luminosité naturelle sublime de généreux volumes offrant une agréable sensation d’espace. La pièce à vivre ainsi que l'espace cuisine donnant sur l'extérieur baignées de lumière, dévoilent de belles surfaces propices à une vie confortable, où chaque instant se savoure dans une atmosphère paisible. L'espace nuit se compose de trois chambres, chacune bénéficiant de sa propre salle de bain, offrant ainsi un confort optimal. À l’extérieur, un jardin intimiste et verdoyant prolonge les espaces de vie, véritable écrin de sérénité au cœur de la ville, invitant à la détente dans un cadre privilégié. Un grand garage complète ce bien, apportant un confort supplémentaire particulièrement apprécié dans ce secteur.

Les informations sur les risques auxquels ce bien est exposé sont disponibles sur le site Géorisques.