Marseille 7 - Maison - 8 pièces

BOMPARD

1 600 000 €  |  Ref : 14327

Infos

Type de bien
Maison
Prix
1 600 000 €   (6 957 €/m2)
Honoraires charge vendeur
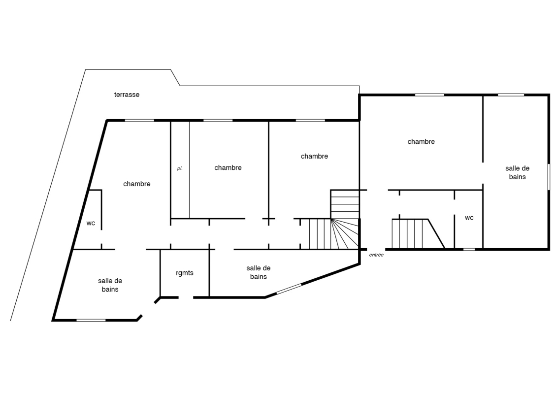
Surface habitable
230 m²
Nombre de pièces
8
Chambres
7
Salle(s) de bain
3
Salle(s) d'eau
2
Nombre de niveaux
2
Ascenseur
Non
Jardin
829 m²
Stationnement
Extérieur et couvert
Bien en copropriété
Non
Taxe foncière
3 849 €
Année de construction
1920
Soumis à l'affichage du DPE
Oui
Dépenses annuelles d'énergie
(montant estimé pour un usage standard)
Entre 3 700 € et 5 100 €
Performance énergétique
Plans

Description

Au cœur du Roucas Blanc, dans le très prisé 7ᵉ arrondissement de Marseille, cette propriété provençale du début du XXe siècle offre une architecture authentique, subtilement ancrée dans son environnement méditerranéen. Implantée sur un vaste terrain en restanques formants une succession de jardins suspendus aux ambiances variées. La maison repose sur le jardin principal, confidentiel et préservé des regards, il offre une atmosphère intimiste, propice à un art de vivre paisible. Exposé plein sud, il est à l'abri du mistral. La bâtisse principale, conserve les signatures de l’ancien : carreaux de ciment, beaux volumes, matières nobles et patinées par le temps. La cuisine et le salon s'ouvrent sur le jardin peuplé d'essences du sud: oliviers, amandiers, néfliers, figuiers, oranger, citronnier, abricotier, glycine, jasmin, vigne vierge, pins, cyprès et platane. La maison accueille 6 chambres, dont 3 suites master avec salles de bain privatives, pensées comme de véritables refuges indépendants. Les terrasses attenantes aux chambres offrent un joli point de vue sur la mer et les environs. La cuisine avec sa pile en pierre de Cassis et les salles d’eau, habillées de carreaux d’azulejos, insufflent une touche artisanale et solaire, en dialogue avec l’identité provençale du lieu. En complément, un appartement indépendant de deux pièces, entièrement repensé par un architecte, prolonge cette signature méditerranéenne : béton ciré, menuiseries en bois largement ouvertes sur une terrasse, escalier en fer forgé, et plafond orné de canisses composent un espace à la fois brut et raffiné. Trois places de stationnement et des espaces pour deux roues et autres matériels viennent parfaire ce bien rare, où se conjuguent caractère, élégance et douceur de vivre, à quelques minutes seulement de la mer.

Les informations sur les risques auxquels ce bien est exposé sont disponibles sur le site Géorisques.