La Ciotat - Maison - 6 pièces

CENTRE-VILLE

1 080 000 €  |  Ref : 14073

Infos

Type de bien
Maison
Prix
1 080 000 €   (5 714 €/m2)
Honoraires charge vendeur
Surface habitable
189 m²
Nombre de pièces
6
Chambres
4
Salle(s) d'eau
3
Nombre de niveaux
1
Ascenseur
Non
Jardin
Oui
Terrain
550 m²
Piscine
Oui
Stationnement
Extérieur
Bien en copropriété
Non
Taxe foncière
3 046 €
Année de construction
1954
Soumis à l'affichage du DPE
Oui
Dépenses annuelles d'énergie
(montant estimé pour un usage standard)
Entre 828 € et 1 120 €
Performance énergétique
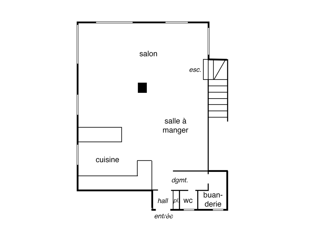
Plans

Description

Située en plein coeur de la Ciotat, au fond d'une petite impasse paisible, cette maison familiale des années 50 a retrouvé tout son éclat après une belle rénovation. On y retrouve cette ambiance méditerranéenne qui met immédiatement à l'aise, portée par un confort moderne. La grande pièce de vie, baignée de lumière grâce aux larges baies vitrées, s'ouvre sur une cuisine entièrement équipée, pensée pour partager de vrais moments de convivialité. A l'étage, quatre chambres et trois salles d'eau, dont une belle suite parentale, offrent un espace nuit fonctionnel et harmonieux. Vous aurez également la possibilité d'aménager une pièce attenante, aujourd'hui utilisée en cuisine professionnelle en un studio indépendant ou en espace de travail. Le quotidien se prolonge naturellement vers l'extérieur: une terrasse accueillante, une piscine à l'abri des regards, de beaux agrumes qui rappellent à quel point on est bien ici, entre douceur de vivre et esprit du Sud.

Les informations sur les risques auxquels ce bien est exposé sont disponibles sur le site Géorisques.