Marseille 12 - Sous promesse

SAINT-JULIEN

635 000 €  |  Ref : 14055

Infos

Type de bien
Maison
Prix
635 000 €   (4 410 €/m2)
Honoraires charge vendeur
Surface habitable
144 m²
Surface Carrez
144 m²
Nombre de pièces
5
Chambres
4
Salle(s) de bain
1
Salle(s) d'eau
1
Nombre de niveaux
1
Ascenseur
Non
Jardin
145 m²
Terrain
250 m²
Stationnement
Garage double
Surface garage
70 m²
Bien en copropriété
Non
Taxe foncière
2 580 €
Soumis à l'affichage du DPE
Oui
Performance énergétique
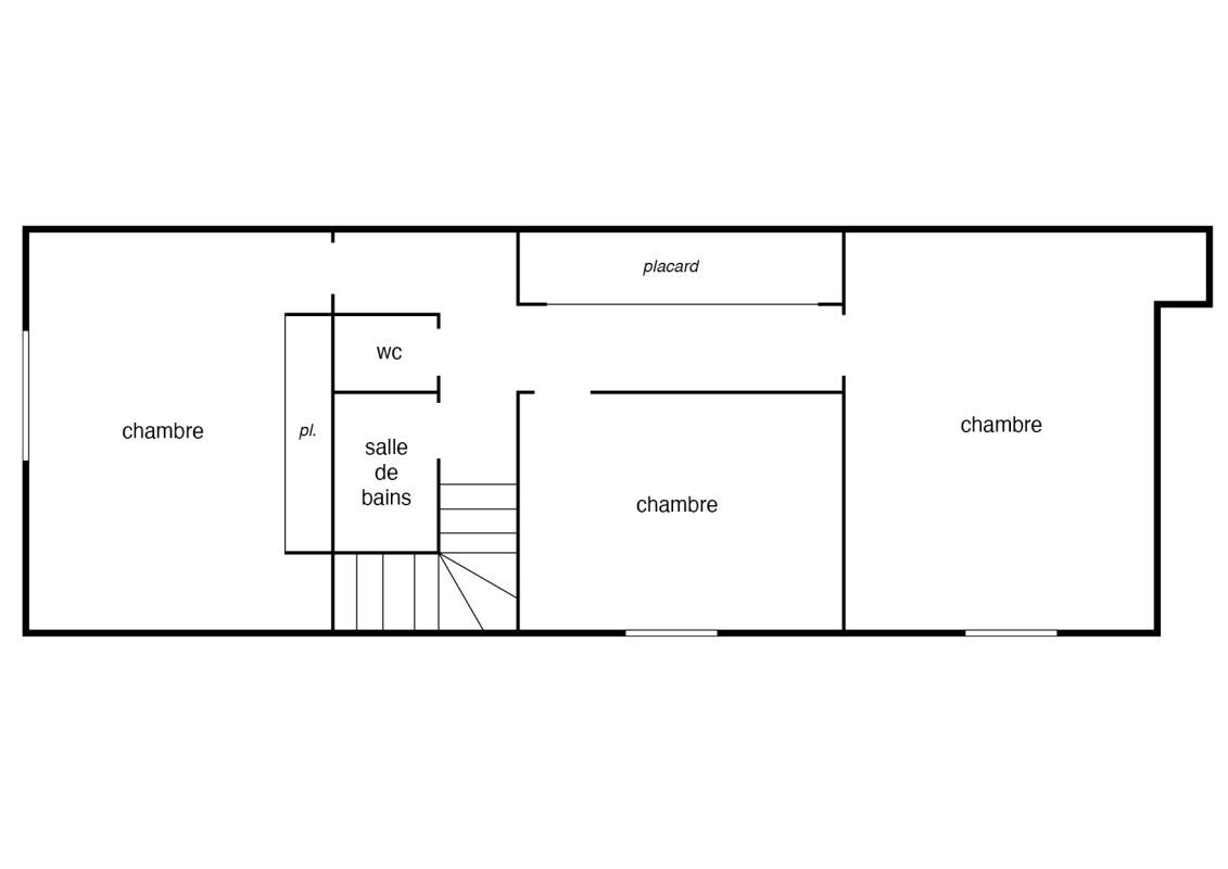
Plans

Description

Découvrez cette charmante maison provençale de 146 m², idéalement située entre la quartier de Beaumont et Saint-Julien, dans un secteur recherché et proche de toutes les commodités. Édifiée sur une parcelle de 250m² sans aucun vis-à-vis, elle offre un cadre de vie paisible et agréable. Le rez-de-chaussée comprend une vaste suite parentale, apportant confort et praticité au quotidien. À l’étage, vous trouverez trois chambres lumineuses ainsi qu’une salle d’eau, parfaitement adaptées à une vie familiale. Le terrain permet également le stationnement de plusieurs véhicules, un véritable atout dans le secteur. Son architecture provençale, ses volumes, son intimité et sa localisation privilégiée en font un bien coup de cœur

Les informations sur les risques auxquels ce bien est exposé sont disponibles sur le site Géorisques.