Marseille 6 - Sous promesse

VAUBAN

739 000 €  |  Ref : 13987

Infos

Type de bien
Appartement
Prix
739 000 €   (6 718 €/m2)
Honoraires charge vendeur
Surface habitable
110 m²
Surface Carrez
107 m²
Nombre de pièces
5
Chambres
4
Salle(s) de bain
1
Salle(s) d'eau
1
Ascenseur
Non
Terrasse
40 m²
Bien en copropriété
Oui   (10 lots)
Nombre de lots d'habitation
5 lots
Procédures
Pas de procédure en cours
Charges de copropriété
1 400 € / an   (117 € / mois)
Taxe foncière
2 300 €
Soumis à l'affichage du DPE
Oui
Dépenses annuelles d'énergie
(montant estimé pour un usage standard)
Entre 650 € et 930 €
Performance énergétique
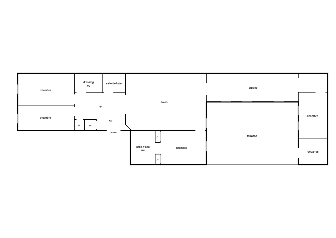
Plan

Description

Idéalement situé à la croisée des quartiers prisés de Vauban et du Palais de Justice, ce bâti bourgeois de la rue Sylvabelle abrite, sur son premier niveau, un rare espace familial d’une élégance discrète. Agencé en type 5 et entièrement rénové, ce lieu séduit par son cachet préservé : hauteurs sous plafond, moulures et volumes généreux s’harmonisent avec des prestations contemporaines soigneusement intégrées. L’espace principal, configuré en type 4, s’articule autour d’une spacieuse pièce de vie où la cuisine semi-ouverte prolonge naturellement la convivialité vers une vaste terrasse, véritable lieu de vie en plein air. Une suite parentale et deux chambres confortables avec salle de bain complètent ce niveau. En fond de cour, une maison indépendante, harmonieusement connectée à l’espace principal, accueille une chambre d’amis (possibilité seconde suite parentale) offrant un espace intime et paisible. Une cave en sous-sol ainsi que la possibilité d'une place de parking double à la location complètent cet ensemble rare et authentique.

Les informations sur les risques auxquels ce bien est exposé sont disponibles sur le site Géorisques.