Marseille 6 - Appartement - 6 pièces

PRÉFECTURE

1 295 000 €  |  Ref : 13941

Infos

Type de bien
Appartement
Prix
1 295 000 €   (5 098 €/m2)
Honoraires charge vendeur
Surface habitable
254 m²
Surface Carrez
235 m²
Nombre de pièces
6
Chambres
4
Salle(s) de bain
1
Salle(s) d'eau
1
Étage
2ème sur 5
Ascenseur
Non
Terrasse
70 m²
Bien en copropriété
Oui
Nombre de lots d'habitation
6 lots
Procédures
Pas de procédure en cours
Charges de copropriété
3 700 € / an   (308 € / mois)
Taxe foncière
3 705 €
Année de construction
1900
Soumis à l'affichage du DPE
Non
Dépenses annuelles d'énergie
(montant estimé pour un usage standard)
Entre 3 090 € et 4 240 €
Performance énergétique
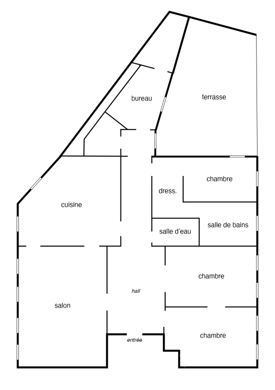
Plan

Description

Situé au cœur du très recherché 6e arrondissement, cet élégant appartement séduit par son cachet unique et son confort moderne. Niché dans un bel immeuble haussmannien avec ascenseur privatif, ce bien de caractère bénéficie d’une rénovation raffinée, alliant charme de l’ancien et prestations contemporaines. Dès l’entrée, on est immédiatement conquis par les grands volumes et la magnifique hauteur sous plafond. Le parquet en bois massif, la cheminée en marbre et les finitions soignées confèrent à ce bien une atmosphère chaleureuse et élégante. L’espace de vie se compose d’un vaste salon baigné de lumière, prolongé par une cuisine semi-ouverte aménagée avec goût. L’ensemble s’ouvre sur une agréable terrasse plein sud côté jardin, idéale pour des moments de détente en toute intimité. Avec ses 6 pièces généreuses, cet appartement offre une organisation fluide et fonctionnelle, parfaitement adaptée à une vie de famille ou à la réception d’invités. Une chambre de bonne de 8 m2, une grande cave de 30 m2 et deux stationnements disponibles à la location complètent cette description.

Les informations sur les risques auxquels ce bien est exposé sont disponibles sur le site Géorisques.