Marseille 8 - Appartement - 7 pièces

PÉRIER

699 000 €  |  Ref : 13911

Infos

Type de bien
Appartement
Prix
699 000 €   (3 052 €/m2)
Honoraires charge vendeur
Surface habitable
229 m²
Surface Carrez
228 m²
Nombre de pièces
7
Chambres
4
Salle(s) de bain
1
Salle(s) d'eau
1
Nombre de niveaux
1
Étage
1er sur 5
Ascenseur
Non
Balcon
10 m²
Bien en copropriété
Oui
Procédures
Pas de procédure en cours
Charges de copropriété
2 000 € / an   (167 € / mois)
Taxe foncière
4 870 €
Année de construction
1868
Soumis à l'affichage du DPE
Oui
Dépenses annuelles d'énergie
(montant estimé pour un usage standard)
Entre 2 500 € et 3 500 €
Performance énergétique
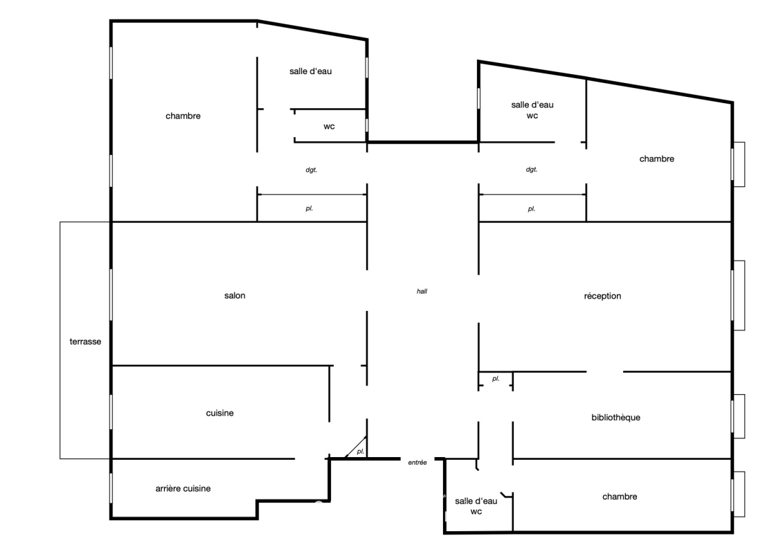
Plan

Description

Dans un immeuble bourgeois de la rue Paradis, cet appartement de 230 m² et 7 pièces déploie tout le charme intemporel de l’architecture haussmannienne. Les éléments d’origine, soigneusement préservés, offrent un cadre d’exception: parquet en chêne massif posé en chevron, aux reflets chaleureux, corniches décoratives finement travaillées dans chaque pièce, cheminées en marbre élégantes, interrupteurs anciens, témoignage d’une authenticité rare, carrelage blanc et bleu d’époque dans les pièces d’eau. L’appartement dispose d’un balcon de 10 m², idéal pour profiter de la lumière et de la perspective coté jardin. Accessibles directement depuis la cuisine par l’escalier de service, trois mansardes et une grande cave complètent le bien offrant de charmants espaces supplémentaires. Quelques travaux de rafraîchissement permettront de magnifier cet écrin et de lui redonner tout son éclat. Un bien d’exception, conjuguant prestige, histoire et potentiel, pour les amateurs de belles demeures. Un box est disponible au prix de 45 000€.

Les informations sur les risques auxquels ce bien est exposé sont disponibles sur le site Géorisques.