Marseille 9 - Appartement - 4 pièces

CABOT

1 299 000 €  |  Ref : 13879

Infos

Type de bien
Appartement
Prix
1 299 000 €   (7 873 €/m2)
Honoraires charge vendeur
Surface habitable
165 m²
Surface Carrez
165 m²
Nombre de pièces
4
Chambres
3
Salle(s) d'eau
2
Nombre de niveaux
1
Étage
1er sur 3
Ascenseur
Non
Terrasse
70 m²
Stationnement
Extérieur
Bien en copropriété
Oui   (4 lots)
Nombre de lots d'habitation
8 lots
Procédures
Pas de procédure en cours
Charges de copropriété
2 340 € / an   (195 € / mois)
Taxe foncière
3 376 €
Année de construction
1800
Soumis à l'affichage du DPE
Oui
Performance énergétique
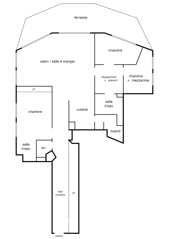
Plan

Description

À la lisière du parc national des Calanques, dans un écrin de verdure et de silence absolu, cette majestueuse bastide du XVIIIe siècle, anciennement propriété de la famille Berger, abrite une copropriété intimiste de 8 lots. Derrière ses façades élégantes, elle dévoile un art de vivre rare, entre charme de l’ancien et prestations contemporaines haut de gamme. C’est au cœur de cette bâtisse de caractère que se trouve cet appartement d’exception de 165 m², véritable cocon raffiné aux volumes généreux et à la distribution parfaitement pensée. La pièce de vie principale, baignée de lumière naturelle, s’ouvre sur une terrasse de 70 m² à l’abri des regards, un véritable jardin suspendu offrant un dialogue permanent avec la nature environnante. Un lieu unique pour vivre dedans-dehors, tout au long de l’année. Trois véritables chambres, deux salles de bain aux lignes élégantes, une cuisine ouverte haut de gamme et de nombreux rangements intégrés complètent ce bien pensé dans les moindres détails. Chaque pièce révèle une harmonie entre confort moderne et caractère architectural d’origine. Dans un environnement préservé, où la nature est omniprésente, ce lieu incarne l’essence même du luxe discret. L’ensemble est complété par deux places de stationnement et une borne de recharge électrique ainsi que la possibilité d'un box en location.

Les informations sur les risques auxquels ce bien est exposé sont disponibles sur le site Géorisques.